Общество,
19.04.2022 11:39
Новые аттракционы появятся в воронежских парках
Фото из архива
Читайте также:
- СК заинтересовался нападением бездомных собак на женщину в Воронеже (19.04.2022 10:40)
- Несколько троллейбусов временно прекратили работу в Воронеже (19.04.2022 10:17)
- За 15 километров от дома: трогательную историю поиска пропавшего пенсионера рассказали воронежские волонтеры (19.04.2022 10:00)
Они будут работать до октября.
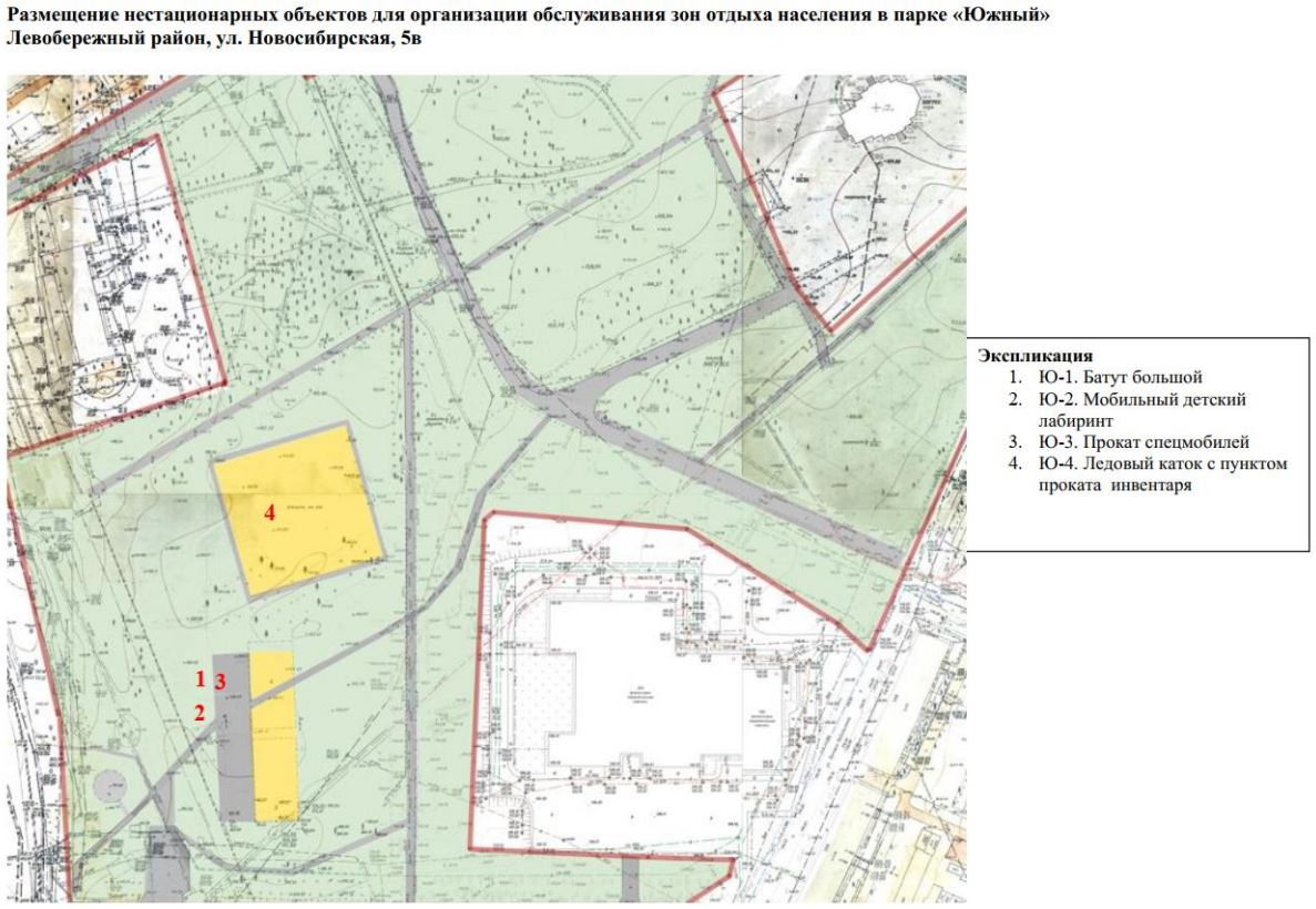
В парках Воронежа будут установлены новые аттракционы. Об этом сегодня, 19 апреля, сообщили в пресс-службе управления экологии администрации города.
Аттракционы появятся в Воронежском центральном парке, парках «Алые паруса», «Южный», имени Дурова, а также в сквере «Комсомольский». Сейчас идет подготовка к установке объектов.
Так, в «Алых парусах» появятся детский автогородок, веревочный городок, аэрохоккей, площадка для мини-гольфа, детская площадка с механическими аттракционами, лазертаг, снукболл и т.д. В Воронежском центральном парке появится многофункциональный игровой центр и развлекательно-образовательный комплекс «Динопарк».
Сообщается, что при устройстве площадок, предназначенных для размещения аттракционов, никак не пострадают зеленые насаждения и объекты инфраструктуры озелененных территорий.
Публикуем, где именно будут размещены нестационарные объекты в зонах отдыха населения на участках парков и скверов:






В парках Воронежа будут установлены новые аттракционы. Об этом сегодня, 19 апреля, сообщили в пресс-службе управления экологии администрации города.
Аттракционы появятся в Воронежском центральном парке, парках «Алые паруса», «Южный», имени Дурова, а также в сквере «Комсомольский». Сейчас идет подготовка к установке объектов.
Так, в «Алых парусах» появятся детский автогородок, веревочный городок, аэрохоккей, площадка для мини-гольфа, детская площадка с механическими аттракционами, лазертаг, снукболл и т.д. В Воронежском центральном парке появится многофункциональный игровой центр и развлекательно-образовательный комплекс «Динопарк».
Сообщается, что при устройстве площадок, предназначенных для размещения аттракционов, никак не пострадают зеленые насаждения и объекты инфраструктуры озелененных территорий.
Публикуем, где именно будут размещены нестационарные объекты в зонах отдыха населения на участках парков и скверов:
Полина Андреева
Новости на Блoкнoт-Воронеж